Al Fresco: Immediately outside the house are a selection of mature trees which afford wonderful shade suitable for relaxed eating and drinking.
The paved area between the two buildings is perfect for large parties. There are numerous outside chairs and tables which can be arranged in any format. Protected by the linking wall, the heated stone provides warmth throughout the evening.
A pergola covering the western end of the main villa provides a relaxing place for lunch out of the midday sun with easy access to the kitchen.
Garden: In keeping with its country setting the garden has been naturally landscaped and planted width an abundance of lavender and rosemary between the vines and olive groves. As water is scarce, the planting has been undertaken on a sustainable but empathetic basis.
The Pool House: Where most pools are stuck out on a limb, Sterlinghes comes with its own five metre square poolhouse which is ideal as a retreat from the sun or a place to entertain.There is an all-weather ping pong table which is perfect for giving children a break from the sun.
With its own kitchen the Pool House is another great place to entertain, traitional Umbrian BBQ out of the sun and a full size pizza oven. Surrounded by fresh herbs, you can cater for yourselves or get Matteo, the local pizza chef, to churn them out considerably faster. Wi-fi, docking station, music inside and out, perfect for work and play.
Boca Court: The Italian version of Boule is situated on a terrace just below the pool house. Docile in appearance this can be a fearsome game.
The Pool: Surrounded by a border of natural stone, this 14 metre by 5 metre pool has corner steps and a shallow end for children, but due to its length provides a great way of working off an extended lunch.
The Surrounding Land: There are no roads within immediate reach of the Villa, so children are free to roam and explore as they wish. The gardens are dotted with figs, cherries, plums, olive, walnut and almond trees which invariably offer ripe fruits throughout the year.
This obviously depends on where you are traveling from, but approximate traveling times are as follows:

On the whole the region enjoys very comfortable weather. When it does get too hot Sterlinghe is situated up in the hills benefiting from the cool evening breeze. The walls of the house are roughly three feet thick and all the windows are shuttered. On hot days the interior stays very cool allowing for pleasant uninterrupted sleep.
Sterlinghe comprises three buildings.
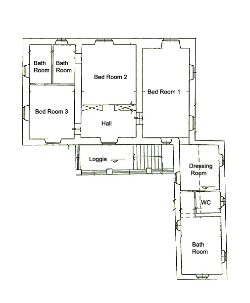
The main villa, with its origins dating back to Etruscan times, has two storeys containing three bedrooms with en-suite bathrooms, a large kitchen, dining room, sitting room, utility room and media room.
A converted barn has been turned into the spacious villetta which has a further three bedrooms with en-suite bathrooms and a self contained kitchen. A large patio connects the two buildings, providing a perfect location for evening meals under the stars, while being able to keep a close eye on any small children who might be in either of the two buildings.
A large poolhouse offers a comfortable shaded area and table tennis.
Ground floor

Main Villa 1st Floor
